Circa
-
Con sede a Berlino, questo pluripremiato studio di design opera all'intersezione tra interior design, design di oggetti e direzione creativa. Con un'estetica distintiva e un approccio innovativo, è riconosciuto per la creazione di spazi coinvolgenti e di oggetti realizzati con cura che incarnano una visione raffinata e contemporanea.
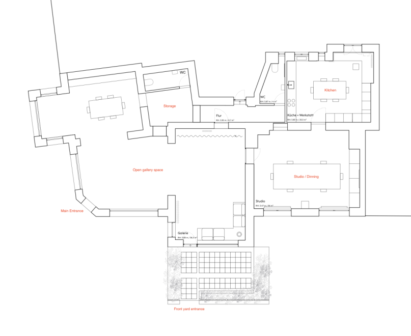
Lo spazio disponibile è lo studio'proprio spazio della galleria con un totale di 170 metri quadrati, due bagni, un'enorme cucina a vista con soffitto luminoso, un ufficio/sala da pranzo e, naturalmente, l'enorme spazio della galleria. L'intero spazio della galleria ha un bellissimo cortile anteriore, ampie finestre aperte sull'angolo della strada e soffitti alti 3,90 m con stucchi.
La location si presta a qualsiasi tipo di cena con tavolo da chef'allestito per 14-18 persone, aperitivo e mostre di ogni genere.
Fatti Location
- DIMENSIONE: 100-199 m2
- ALTEZZA DELLA CAMERA: 3,80
- METRI QUADRI: 170
- PIANO: 1
- TARIFFA MEDIA GIORNALIERA: SU RICHIESTA
CARATTERISTICHE
- ADATTO AI DISABILI
- GIARDINO
- BAGNO
- AREA ESTERNA


















