Acerca de
-
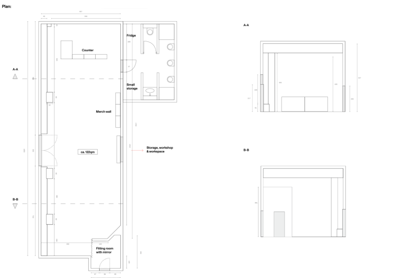
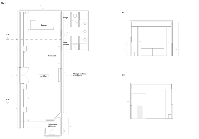
Esta flexible y elegante sala de exposiciones de 122 metros cuadrados ofrece una estética industrial única, con suelos de hormigón pulido y atrevidos detalles arquitectónicos. Diseñada como espacio multifuncional, es ideal para proyectos creativos, activaciones de marca, instalaciones artísticas y eventos culturales. Con su distribución abierta y su ambiente inspirador, es un lugar ideal para marcas, artistas, diseñadores e instituciones que buscan un entorno distintivo.
Situado directamente a pie de calle, el espacio es fácilmente accesible desde la animada acera. Su fachada de ventanales ofrece una excelente visibilidad y puede dedicarse por completo a la exposición, lo que resulta perfecto para atraer la atención y mostrar contenidos creativos.
Disponible para alquiler a corto o largo plazo, el espacio puede utilizarse como parte de un concepto de colaboración o reservarse de forma independiente como local vacío. Si se solicita, se ofrecen servicios adicionales, como unos 45 metros cuadrados de espacio de almacenamiento, un taller compacto y varias estaciones de trabajo, lo que lo hace idóneo tanto para la producción como para la presentación.
Perfecto para pop-ups, exposiciones, showrooms o sesiones de trabajo creativo, este lugar ofrece carácter y funcionalidad en un entorno urbano dinámico.
Location Hechos
- TAMAÑO: 100-199 m2
- SUELO: SUELO
- TARIFA MEDIA DIARIA: PREVIA SOLICITUD
- APTO PARA DISCAPACITADOS ✓
- DISTANCE TO CITY CENTER: 1.3 km (Berlin)
- DISTANCE TO AIRPORT: 18 km (Berlin Brandenburg Airport)








